Add beauty and value to your home with a classic pergola design.
The 12' x 12' pergola is our most popular pergola, fitting well on patio or deck, it can be used as a dining area or an outdoor room for entertaining. When completed, this structure will have no exposed fasteners and be very impressive in character.
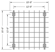
The size of 12' x 12' is the distance between column centers, the size of the upper elements is 15' x 15' because all of the upper elements cantilever 18" beyond the column centers.
Call (800) 686-3180 for more options





